Allgemeines:
Startseite
Datenbank:
Suche (Gebäude)
Suche (Literaturstell.)
Suche (Architekten)
Ruhrgebiet:
Bochum
Bottrop
Dortmund
Duisburg
Ennepe-Ruhr-Kreis
Essen
Gelsenkirchen
Hagen
Hamm
Herne
Mülheim
Oberhausen
Recklinghausen
Kreis Unna
Kreis Wesel
Sonstiges:
Bücher & DVDs
architektur-ruhr

my-bauten:
Login



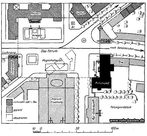
Polizeipräsidium Gelsenkirchen
(ehemalig: Polizeiamt Buer)

Planung:
Baujahr: 1926-27

Foto Straßenansicht aus [ZfB29]

Anschrift: Rathausplatz 4
Stadt: Gelsenkirchen-Buer
Link:


Architekt: Ministerialrat Conrad Dammeier (Vorentwurf); Regierungsbaumeister Paul Fehmer (Entwurf und Bauleitung)
Ausführung:
Bauherr: Preußische Bauverwaltung
Besitzer:


Quelle: [ZfB29]
Zustand: erhalten
Denkmalschutz: ja


Kartenansicht


Zahnarzt Marketing - RegioHelden




seit 25.03.1999
Letzte Änderung: 28.10.2011